Neubau Zum Kahleberg - 4-Raum-Wohnung zu vermieten
| Objektinformationen | |||||||||||
|---|---|---|---|---|---|---|---|---|---|---|---|
| Wohnungstyp | Etagenwohnung | ||||||||||
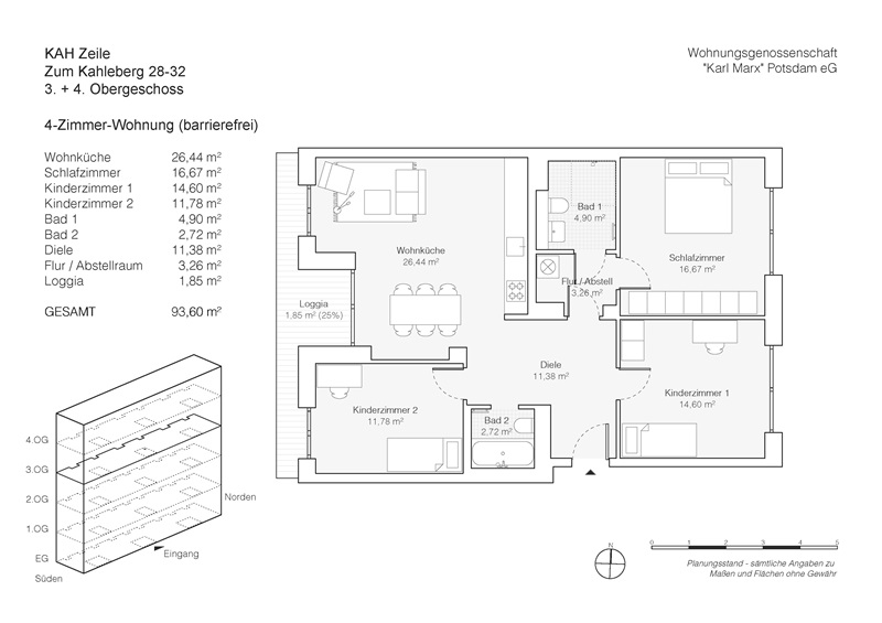
| Wohnfläche | 93.6 m² | ||||||||||
| Zimmer: | 4 | ||||||||||
| Kaltmiete: | 1333.8 € | ||||||||||
| Nebenkosten: | 215.28 € | ||||||||||
| Heizkosten: | 112.32 € | ||||||||||
| Heizkosten in Nebenkosten enthalten: | Nein | ||||||||||
| Gesamtmiete: | 1661.4 € | ||||||||||
| Kaution / Provision | |||||||||||
| Genossenschaftsanteile: | 2665,00 | ||||||||||
| weitere Informationen | |||||||||||
| Etage: | 2 | ||||||||||
| Anzahl Etagen: | 5 | ||||||||||
| Nutzfläche: | 93.6 m² | ||||||||||
| Anzahl Schlafzimmer: | 3 | ||||||||||
| Anzahl Badezimmer: | 2 | ||||||||||
| Balkon: | Ja | ||||||||||
| Aufzug: | Ja | ||||||||||
| Keller: | Ja | ||||||||||
| WG-Zimmer geeignet: | |||||||||||
| Haustiere: | Nein | ||||||||||
| Bausubstanz | |||||||||||
| Objektzustand: | Erstbezug | Baujahr: | 2025 | ||||||||
| Qualität der Ausstattung: | Gehoben | ||||||||||
| Heizungsart: | Fernwärme | ||||||||||
| Bezugsfrei ab: | 01.03.2026 | ||||||||||
Objektbeschreibung
Ein Wettbewerb und viel Grün Das Projekt „Turm und Zeile“ ist der Siegerentwurf eines Architekturwettbewerbes, den unsere Genossenschaft im Jahr 2017 durchgeführt hat. Die beiden Gebäude greifen die vorhandene Bebauung der Waldstadt II auf. Die Gebäude sind so positioniert, dass ein großzügiger Quartiersplatz zwischen den Gebäuden hin zur Straße entsteht. Dieser Platz dient den Bewohnern als vielseitiger Aufenthaltsort. So können dort Begegnungen stattfinden, Kinder spielen und auch die beiden Gemeinschaftsräume sind vom Platz aus zugänglich. Das genossenschaftliche Miteinander genießt hier einen besonderen Stellenwert. Neben den von den Bewohnern selbstverwalteten Gemeinschaftsräumen gibt es eine Gästewohnung im obersten Geschoss des Turmes mit einem tollen Ausblick, eine Gemeinschaftswohnung, z. B. für eine Senioren-WG und bei Bedarf die Möglichkeit eines Concierge-Service. Die Außenanlagen sind naturnah gestaltet und gehen in das hüglige Waldgebiet, das zum Landschaftsschutzgebiet Potsdamer Wald- und Havelseengebiet gehört, über. Dieses Projekt zeichnet die innerstädtische Anbindung einerseits und andererseits die Nähe zur Natur aus. Eine Photovoltaik-Anlage wird in Kooperation mit der StadtWatt eG Mieterstrom ermöglichen und es wird Lademöglichkeiten für E-Autos geben.
Ausstattung
Bad mit Wanne, Bad mit Dusche, offene Wohnküche, Keller, Diele, Flur/Abstellraum, Loggia
Lage
Modernes Quartier in Waldnähe Es entstehen insgesamt 82 Wohnungen mit barrierefreien Zugängen und Aufzügen. Die Wohnungen verfügen über barrierearme Dusch- oder Wannenbäder, Abstellflächen in jeder Wohnung, offene Wohnküchen und private Loggien. Die Ausstattung ist geprägt von Massivholzparkett in den Wohnbereichen, gefliesten Küchenzonen und Bädern, einer komfortablen Fußbodenheizung und Rollläden an den Fenstern an den Ost-, Süd- und Westseiten. Es wird 42 Stellplätze entlang der Häuser geben – einige mit Lademöglichkeit für E-Autos. Zudem werden vielfältige Abstellmöglichkeiten für die Fahrräder der Bewohner angeboten. Beide Gebäude verfügen jeweils über einen möblierten Gemeinschaftsraum mit vollausgestatteten Küchen, die für selbstorganisierte Kurse oder Familienfeiern oder gemeinschaftliche Events von den Mitgliedern genutzt werden können. Natur und gute Anbindung Die Potsdamer Waldstadt II entstand zwischen 1975 und 1982 als typisches DDR-Plattenbaugebiet. Die genossenschaftlichen Wohnungsbestände sind heute modernisiert und im Stadtteil leben aktuell ca. 10.200 Einwohner. Das Projekt grenzt direkt an ein großes Waldgebiet. Beliebte Ausflugsziele wie der Teufelssee und die Ravensberge bieten somit Naherholung vor der Haustür. Die Haltestellen der Tramlinien 91, 93 und 98 und die der Buslinien 611 und N14 sind ca. 500 m und der Bahnhof Rehbrücke mit der Regionalbahnanbindung nach Berlin ist 1,7 km entfernt. Neben dieser guten Anbindung an den öffentlichen Nah- und auch Fernverkehr finden sich im Quartier fußläufig neben allen notwendigen Nahversorgungs- und ärztlichen Versorgungseinrichtungen auch diverse Gastronomie und Kulturangebote. Darüber hinaus sind Spielplätze, Kitas und Schulen sowie Sport- und sonstige Freizeiteinrichtungen für die jüngsten und jungen Bewohner in der Potsdamer Waldstadt schnell und sicher erreichbar.
Sonstiges
https://wohnungen-potsdam.de/